君津市杢師3丁目 1号棟 新築戸建て
2022/09/14
君津市杢師3丁目 1号棟 新築戸建て
価格 〇 3,390万円(税込み)
所在地 〇 君津市杢師3-22-P1
交通 〇 JR内房線「君津」駅 徒歩30分、JR内房線「君津」駅までバス4分 バス停「杢師4丁目」まで徒歩4分
構造 〇 木造2階建て
築年月 〇 2022年9月
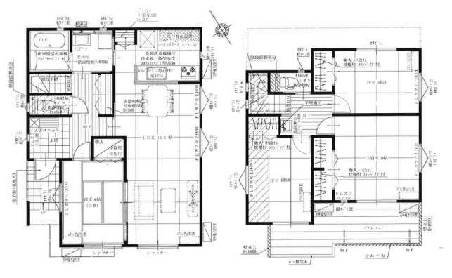
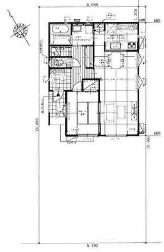
間取 〇 4LDK+パントリー+SIC
土地面積 〇 166.23㎡(50.28坪)
建物面積 〇 107.64㎡(32.56坪)
駐車場 〇 2台可能
土地権利 〇 所有権
都市計画 〇 市街化区域
用途地域 〇 第2種住居地域
地目 〇 宅地
建蔽率 〇 60%
容積率 〇 200%
設備 〇 東京電力・都市ガス・公営水道・公共下水
道路 〇 南西側23.94m公道に接道
現況 〇 未完成
引渡し 〇 2023年1月


